Accessibility to the House of Life
Fundacja Living Stones, ul. Boczna 2, 32-600 Oświęcim
Access to, and inside, the building for people who are less abled
- As with all visitors, an appointment must be arranged before visiting the house by contacting us by email or phone.
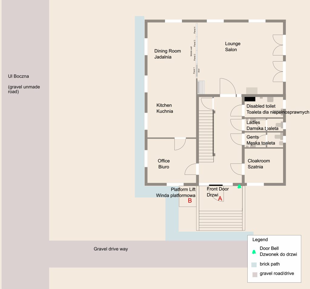
- There is one visitor entrance to the building from ulica Boczna marked with the letter A in the map below. Eight steps leads to the entrance. A bell is located at the entrance door. Visitors are requested to ring the bell before entering.
- There is a platform lift for people with mobility impairments and wheelchair users that avoids the steps leading to the entrance of the building. This is marked with the letter “B” in the map below. Please call +48 519 433 612 or +48 518 600 441 to get someone to operate the lift or ring the doorbell.
- The door to the building needs to be pulled open, it does not open automatically. The door is opened with the right-hand leaf.
- The entrance hall and rooms on the ground floor are accessible for wheelchair users.
- There is a disabled toilet at the end of the corridor, on the right-hand side – see map below.
- There are no lifts inside the building.
- There are no induction loops in the building.
- There is no Sign Language Interpreter (PJM or English) on site.
- The building and visitor areas are accessible with an assistance dog, guide dog or carer/assistant.

Transport
By car
- There is direct access by car to the front door steps and the platform lift via the gravel driveway.
- There are no designated parking spaces for people with disabilities, but we can arrange a parking place directly in front of the building if you let us know beforehand.
By public transport
- Public transport could be a problem for someone with disability issues. Ul.Boczna is a gravel, bumpy unmade road. The driveway to the House of Life is also rough gravel.
- Bus: The nearest bus stop to the HoL is the MKZ bus stop in ul. Stanisławy Leszczyńskiej, which is one km away (14-minute walk).
- Train: The nearest train station is Oświęcim, which is 1,7km away (24-minute walk).
- Auschwitz Shuttle Bus: There is a shuttle bus between the former camps of Auschwitz and Auschwitz-Birkenau if you have an entrance ticket for Auschwitz. The House of Life is a 7-minute walk from the stop by Auschwitz-Birkenau’s main gate.
Directions
For directions to the House of Life see the instructions on our Location page.
